Bouwgrond (projecten) te koop
Leuvensebaan 323, 3220 Holsbeek
beschrijving
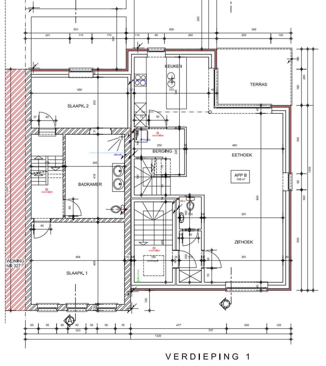
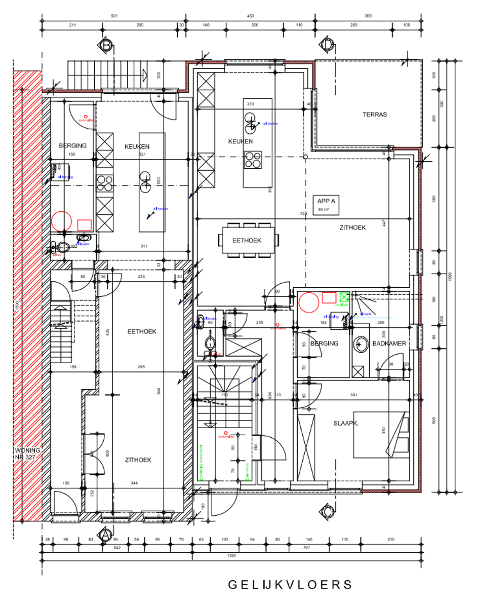
Interessant investeringsproject waarmee men direct aan de slag kan dankzij de afgeleverde vergunning. Deze voorziet op het perceel met mooie tuinzone een renovatie van de bestaande woning van 180m² bewoonbaar + kelder en ernaast een nieuwbouw aanbouw met een gelijkvloers appartement van 99m² en een duplex erboven van 144m² bruto bewoonbaar. Dankzij het halfopen karakter genieten de appartement van knappe raamvlakken rondom en beschikken ze zowel over terrassen met praktische verhoudingen als een gedeelde tuinzone. Het hoogteverschil tussen de straat en de tuinzone maakt een slimme circulatie mogelijk waarbij men via de zijtuinstrook achteraan 2 zeer ruime inpandige garageboxen en bergingen bereikt op het kelderniveau. Hier is achteraan ook bezoekersparking voorzien om alle comfort te bieden. De kleinschaligheid van het project tezamen met de ideale oppervlaktes van de wooneenheden en de aantrekkelijke architectuur die oud en nieuw combineert zullen de markt van zoekende kopers in de dichte rand rond Leuven enorm aanspreken. Dit in combinatie met een degelijke rendabiliteit én duidelijke timing doordat het vergunningsproces al doorlopen is geeft een totaalplaatje dat men als ontwikkelaar niet snel tegenkomt. Voor meer informatie en/of een rondgang ter plaatse contacteer Dries op 0470/ 06 66 43 of dries@immosurplus.be
Financieel
- Prijs
- € 440.000
- Onder BTW stelsel
- Nee
- Referentie
- Leuvensebaan 323 project
- Ter beschikking stelling
- Vanaf akte
Afmetingen
- Grondoppervlakte
- 1.015 m²
Stedenbouwkundige info
- G-score
- A
- P-score
- A
Ruimtelijke ordening
- Bestemming
- Woongebied
- Bouwvergunning
- Ja
- Dagvaarding
- Nee
- Verkavelingvergunning
- Nee
- Voorkooprecht
- Nee
Ligging
- Leuvensebaan 323
- 3220 Holsbeek



















